Gå til: Plantegninger | Fasade | Kontaktskjema
209 – GISKE
SLANK OG MODERNE
Store, spesielle vindusflater og stor takhøyde gir Giske et spennende utseende. Boligen passer perfekt på en smal, skrå tomt, og gir med sin slanke bygningskropp et moderne og stilrent uttrykk.
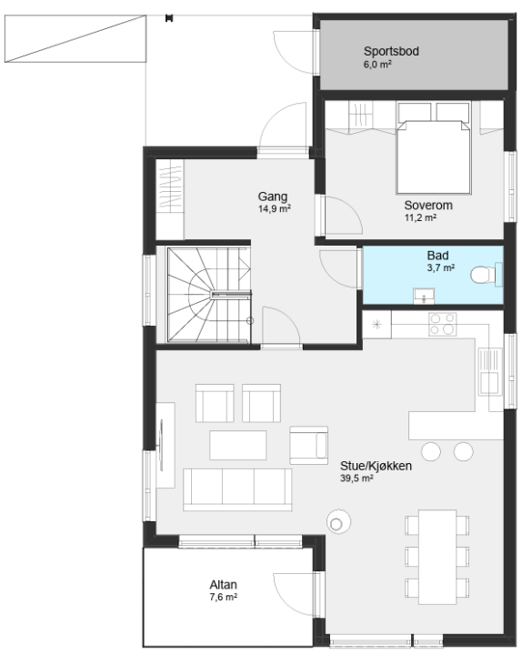
Den åpne stue- og kjøkkenløsningen i hovedetasjen gir en lys og luftig atmosfære, og fra stuen er det direkte utgang til en liten altan. Underetasjen rommer flere soverom, et stort bad, vaskerom og en ekstra stue.
Giske er en bolig som kombinerer estetikk med funksjon, og som utnytter tomta maksimalt – både horisontalt og vertikalt.
TEKNISK DATA

Innenfor arealgrensen til Husbanken
PLANTEGNINGER
ØNSKER DU MER INFORMASJON?
FYLL UT SKJEMAET, SÅ KONTAKTER VI DEG FOR EN HYGGELIG BOLIGPRAT
ARKITEKT
ALT KAN TILPASSES FOR Å IMØTEKOMME DERES ØNSKER OG BEHOV
Fordelene med å bygge et helt nytt hus, er at du kan få det akkurat slik som du vil. Trolig finner du en husmodell i vår katalog som kan passe, men kanskje ønsker du å tilpasse boligen etter egne ønsker og behov.
Vi vil gjøre vårt ytterste for at du skal bli fornøyd, og hjelper deg hele veien fra idé til ferdig bolig. Vi har fagkunnskap og gir gode råd for at du skal få bygget en bolig som passer deg helt perfekt.»







