Gå til: Plantegninger | Fasade | Kontaktskjema
223 – FLØ
LYS OG LUFTIG
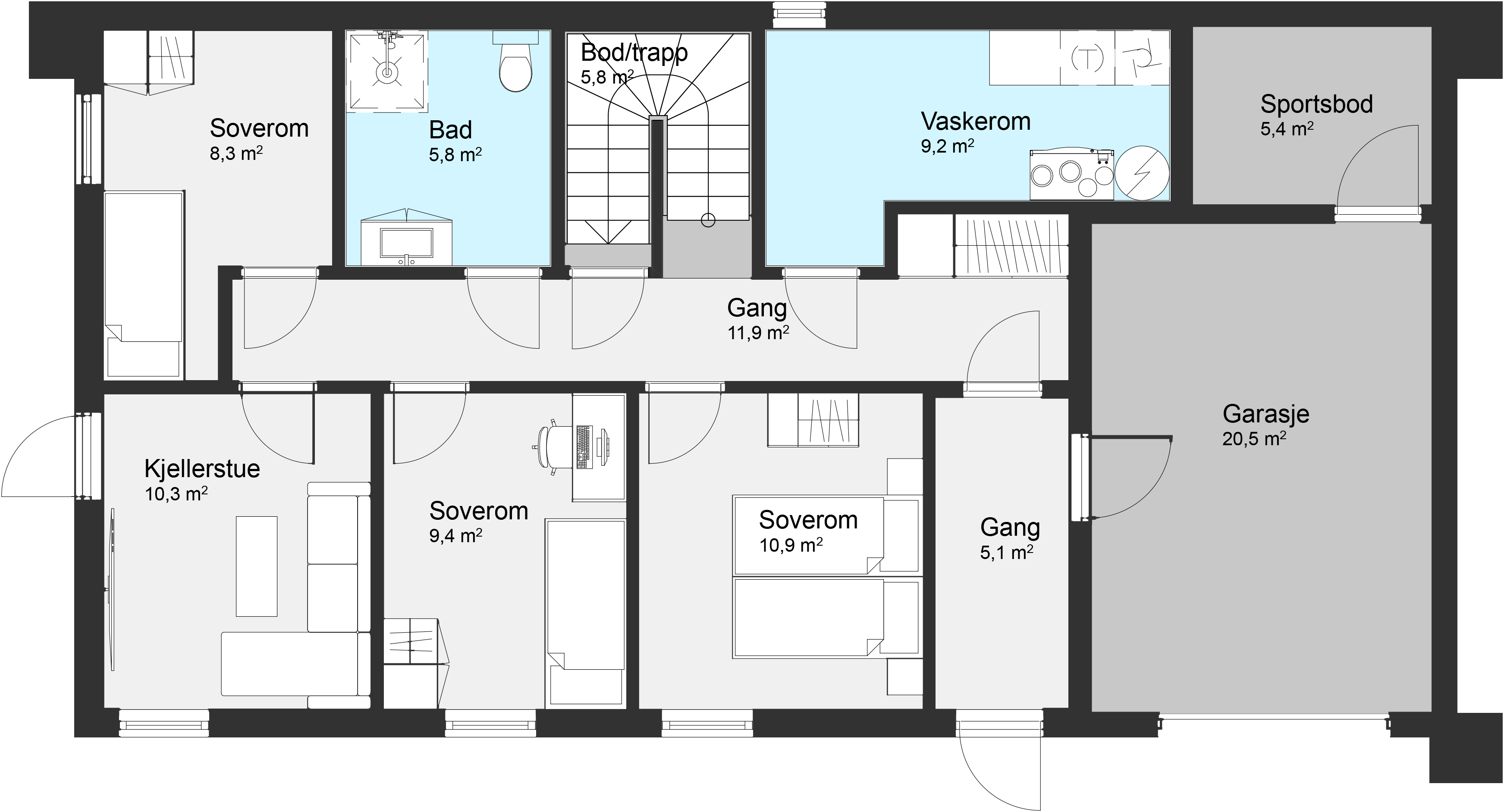
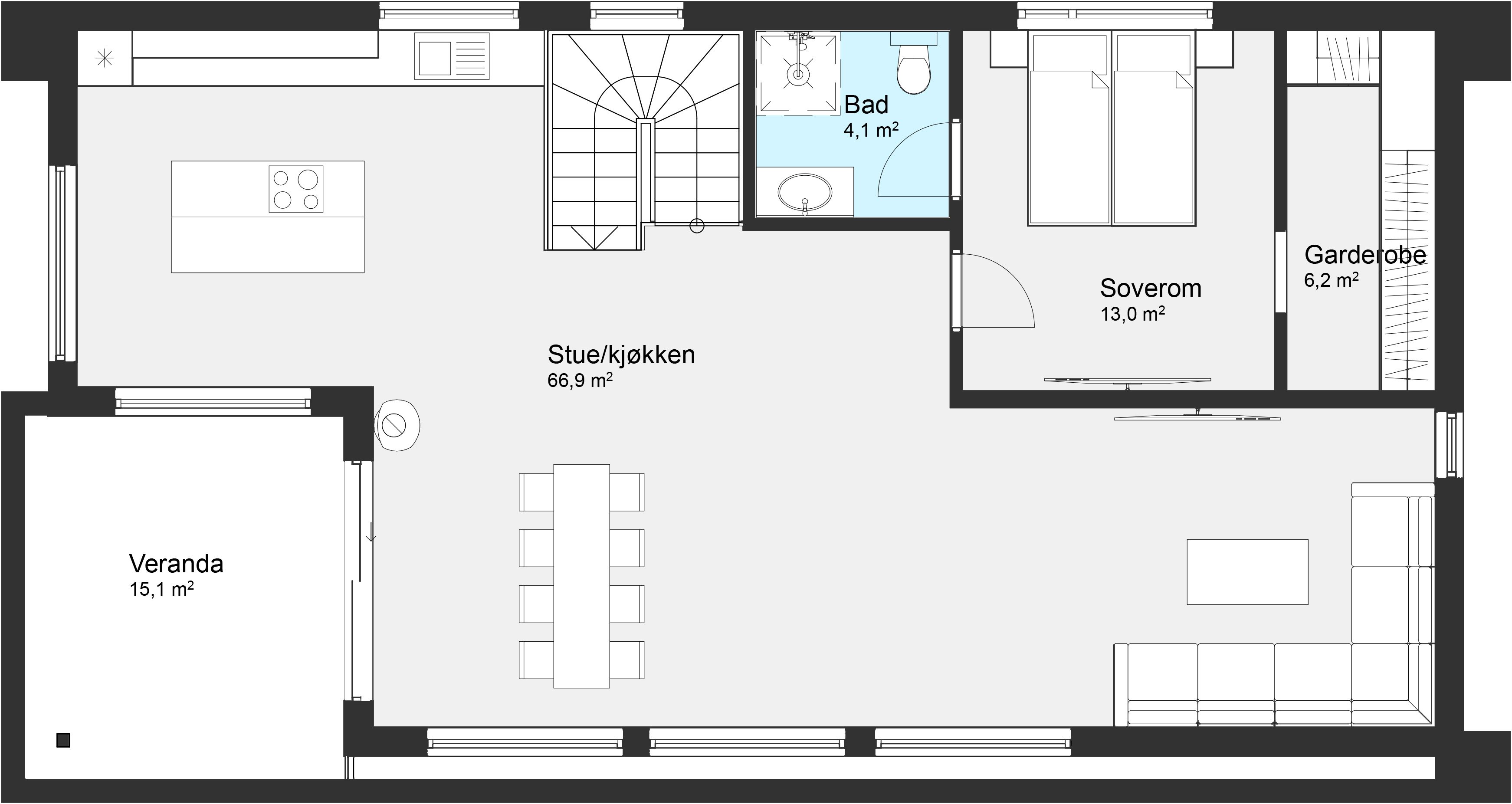
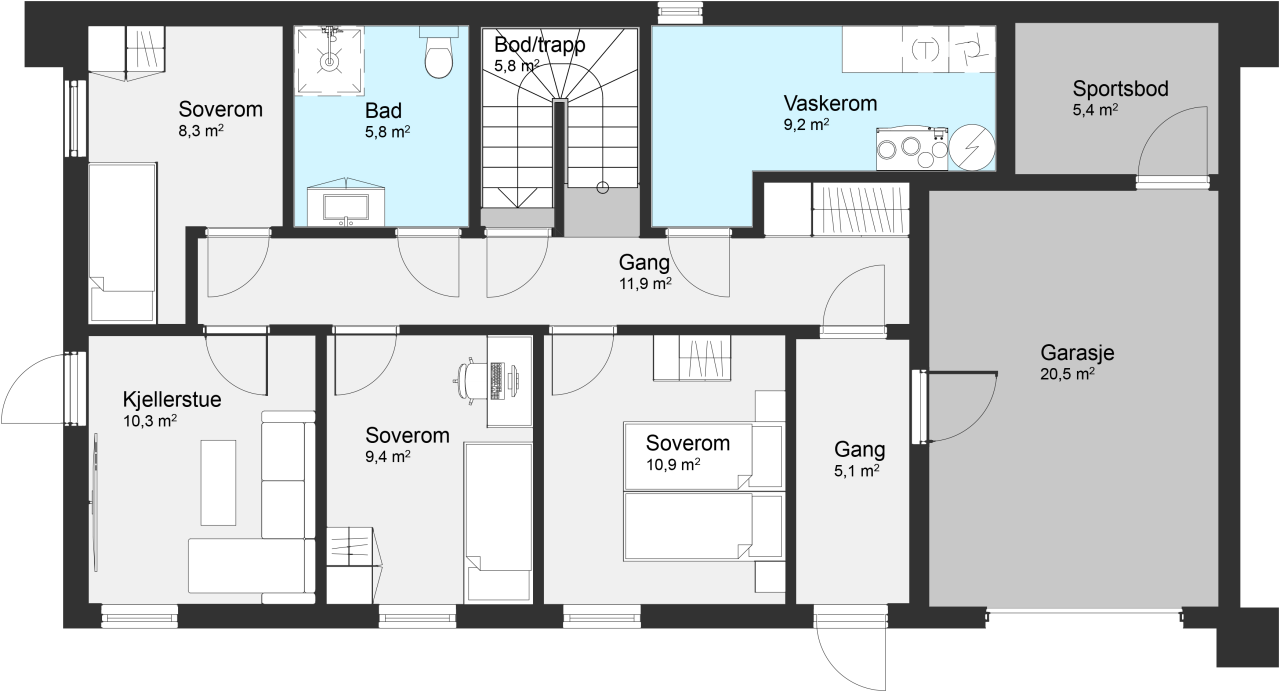
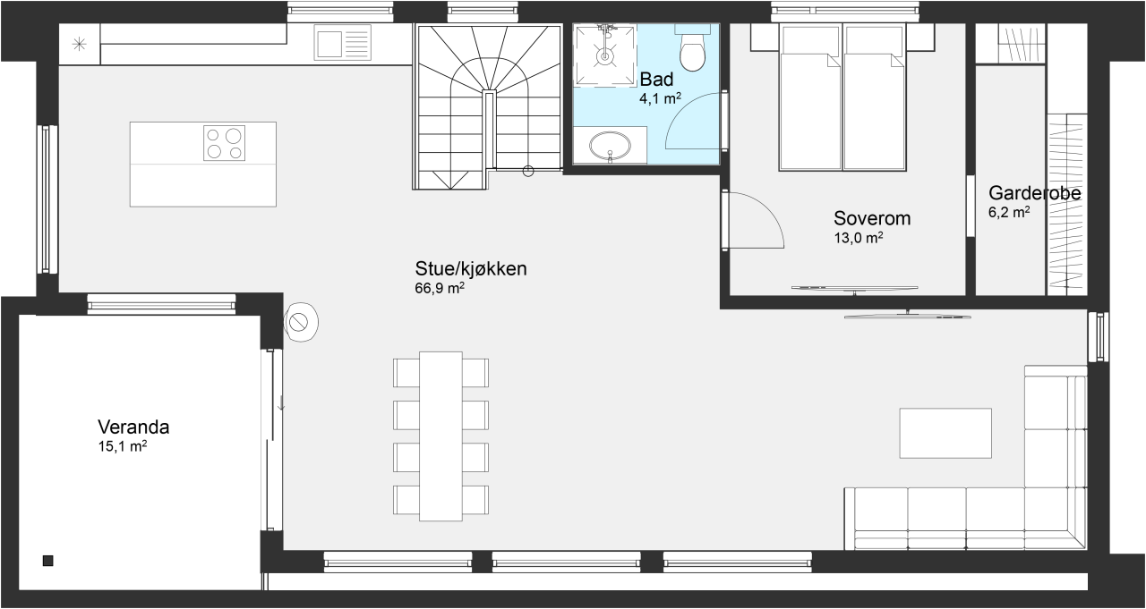
Flø er en moderne bolig med en smart og gjennomtenkt planløsning. Boligen går over to etasjer, og gir med sine fire soverom og flere oppholdsrom god plass til både familie og gjester.
I første etasje finner du tre av soverommene, bad, vaskerom og en koselig kjellerstue. Hovedetasjen byr på en åpen stue- og kjøkkenløsning med store vindusflater som slipper inn rikelig med dagslys. Her ligger også hovedsoverommet, med walk-in garderobe og eget bad.
Med integrert garasje og god bodplass får du en bolig som kombinerer det praktiske med det behagelige – og som har plass til det meste.
TEKNISK DATA
ØNSKER DU MER INFORMASJON?
FYLL UT SKJEMAET, SÅ KONTAKTER VI DEG FOR EN HYGGELIG BOLIGPRAT
ARKITEKT
ALT KAN TILPASSES FOR Å IMØTEKOMME DERES ØNSKER OG BEHOV
Fordelene med å bygge et helt nytt hus, er at du kan få det akkurat slik som du vil. Trolig finner du en husmodell i vår katalog som kan passe, men kanskje ønsker du å tilpasse boligen etter egne ønsker og behov.
Vi vil gjøre vårt ytterste for at du skal bli fornøyd, og hjelper deg hele veien fra idé til ferdig bolig. Vi har fagkunnskap og gir gode råd for at du skal få bygget en bolig som passer deg helt perfekt.»







