Gå til: Plantegninger | Fasade | Kontaktskjema
317 – STEINSET
Hytta Steinset er en åpen og luftig hytte med mye naturlig lys.
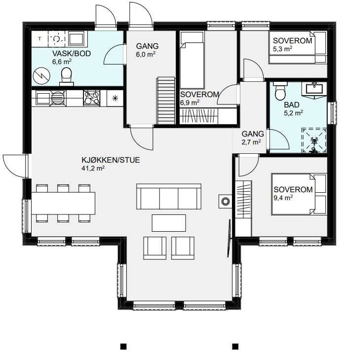
Denne hytta har tre soverom, bad og et praktisk vaskerom med egen utgang. Hytten har også en hems som kan benyttes, om man får flere overnattingsgjester. Det store allrommet i hytten gir deg god plass til en stor spisegruppe hvor du kan samle familie og venner på middag. Tenk deg å kunne sette seg ned i sofakroken med en kaffikopp etter en lang dag på fjellet, la blikket hvile på naturen utenfor vinduet mens det knitrer i peisen.
TEKNISK DATA
PLANTEGNINGER
ØNSKER DU MER INFORMASJON?
FYLL UT SKJEMAET, SÅ KONTAKTER VI DEG FOR EN HYGGELIG BOLIGPRAT
ARKITEKT
ALT KAN TILPASSES FOR Å IMØTEKOMME DERES ØNSKER OG BEHOV
Fordelene med å bygge et helt nytt hus, er at du kan få det akkurat slik som du vil. Trolig finner du en husmodell i vår katalog som kan passe, men kanskje ønsker du å tilpasse boligen etter egne ønsker og behov.
Vi vil gjøre vårt ytterste for at du skal bli fornøyd, og hjelper deg hele veien fra idé til ferdig bolig. Vi har fagkunnskap og gir gode råd for at du skal få bygget en bolig som passer deg helt perfekt.»







